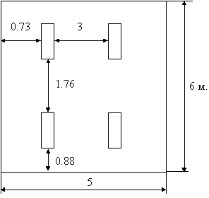
Вопросы безопасной жизнедеятельности человекаВопросы безопасной жизнедеятельности человека необходимо решать на всех стадиях жизненного цикла, будь то разработка, внедрение в жизнь или эксплуатация программы. Обеспечение безопасной жизнедеятельности человека в значительной степени зависит от правильной оценки опасных, вредных производственных факторов. Одинаковые по тяжести изменения в организме человека могут быть вызваны различными причинами. Это могут быть какие-либо факторы производственной среды, чрезмерная физическая и умственная нагрузка, нервно-эмоциональное напряжение, а также разное сочетание этих причин. В данной главе я решаю вопросы безопасной жизнедеятельности на стадии разработки программного комплекса, предназначенного контроля готовых изделий на наличие дефектов, диагностики и идентификации дефектов работающего оборудования с помощью исследования их спектральных графиков. Лаборатория, в которой разрабатывался программный комплекс, находится в корпусе Энергетического Факультета ЮРГТУ(НПИ) на кафедре ЭВМ. 1 Анализ опасных и вредных факторов, воздействующих на программиста при разработке данной системы. Опасные и вредные производственные факторы по природе возникновения делятся на следующие группы: –физические; –химические; –психофизиологические; –биологические. В помещении лаборатории на программиста могут негативно действовать следующие физические факторы: –повышенная и пониженная температура воздуха; –чрезмерная запыленность и загазованность воздуха; –повышенная и пониженная влажность воздуха; –недостаточная освещенность рабочего места; –превышающий допустимые нормы шум; –повышенный уровень ионизирующего излучения; –повышенный уровень электромагнитных полей; –повышенный уровень статического электричества; –опасность поражения электрическим током; –блеклость экрана дисплея. К химически опасным факторам, постоянно действующим на программиста относятся следующие: –возникновение, в результате ионизации воздуха при работе компьютера, активных частиц. Биологические вредные производственные факторы в данном помещении отсутствуют. К психологически вредным факторам, воздействующим на оператора в течение его рабочей смены можно отнести следующие: –нервно - эмоциональные перегрузки; –умственное напряжение; –перенапряжение зрительного анализатора. Далее более подробно рассмотрены опасные и вредные факторы, воздействующие на программиста, возникшие в связи с разработкой данной системы. 1.1 Микроклимат рабочей зоны программиста Микроклимат производственных помещений - это климат внутренней среды этих помещений, который определяется действующими на организм человека сочетаниями температуры, влажности и скорости движения воздуха Лаборатория является помещением ? категории (выполняются легкие физические работы), поэтому должны соблюдаться следующие требования: - оптимальная температура воздуха- 22° С (допустимая - 20-24° С), оптимальная относительная влажность- 40 -60% (допустимая - не более 75%) , скорость движения воздуха не более 0.1м/с. Для создания и автоматического поддержания в лаборатории независимо от наружных условий оптимальных значений температуры, влажности, чистоты и скорости движения воздуха, в холодное время года используется водяное отопление, в теплое время года применяется кондиционирование воздуха. Кондиционер представляет собой вентиляционную установку, которая с помощью приборов автоматического регулирования поддерживает в помещении заданные параметры воздушной среды. 1.2 Освещение рабочего места Работа, выполняемая с использованием вычислительной техники, имеют следующие недостатки: - вероятность появления прямой блесткости; - ухудшенная контрастность между изображением и фоном; - отражение экрана. В связи с тем, что естественное освещение слабое, на рабочем месте должно применяться также искусственное освещение. Далее будет произведен расчет искусственного освещения. Размещение светильников определяется следующими размерами: Н = 3 м. - высота помещения hc = 0,25 м. - расстояние светильников от перекрытия hп = H - hc = 3 - 0,25 = 2,75 м. - высота светильников над полом hp = высота расчетной поверхности = 0,7 м (для помещений, связанных с работой ПЭВМ) h = hп - hp = 2,75 - 0,7 = 2,05 - расчетная высота. Светильника типа ЛДР (2х40 Вт). Длина 1,24 м, ширина 0,27 м, высота 0,10 м. L - расстояние между соседними светильниками (рядами люминесцентных светильников), Lа (по длине помещения) = 1,76 м, Lв (по ширине помещения) = 3 м. l - расстояние от крайних светильников или рядов светильников до стены, l = 0,3 - 0,5L. lа = 0,5La, lв = 0,3Lв la = 0,88 м., lв = 0,73 м. Светильники с люминесцентными лампами в помещениях для работы рекомендуют устанавливать рядами. Метод коэффициента использования светового потока предназначен для расчета общего равномерного освещения горизонтальных поверхностей при отсутствии крупных затемняющих предметов. Потребный поток ламп в каждом светильнике Ф = Е * r * S * z / N * h , где Е - заданная минимальная освещенность = 300 лк., т.к. разряд зрительных работ = 3 r - коэффициент запаса = 1,3 (для помещений, связанных с работой ПЭВМ) S - освещаемая площадь = 30 м 2 . z - характеризует неравномерное освещение, z = Еср / Еmin - зависит от отношения l = L/h , l a = La/h = 0,6, l в = Lв/h = 1,5. Т.к. l превышают допустимых значений, то z=1,1 (для люминесцентных ламп). N - число светильников, намечаемое до расчета. Первоначально намечается число рядов n, которое подставляется вместо N. Тогда Ф - поток ламп одного ряда. N = Ф/Ф1, где Ф1 - поток ламп в каждом светильнике. h - коэффициент использования. Для его нахождения выбирают индекс помещения i и предположительно оцениваются коэффициенты отражения поверхностей помещения r пот. (потолка) = 70%, r ст. (стены) = 50%, r р. (пола) = 30%. Ф = 300 * 1,3 * 25 * 1,1 / 2 * 0,3 = 21450 лм. Я предлагаю установить два светильника в ряд. Светильники вмещаются в ряд, так как длина ряда около 4 м. Применяем светильники с лампами 2х40 Вт с общим потоком 5700 лм. Схема расположения светильников представлена на рисунке 1.1.
Рис. 1.1 Схема расположения светильников. 1.3 Воздействие шума на программиста. Защита от шума. В помещениях с низким уровнем общего шума, каким является лаборатория где работает программист, источниками шумовых помех могут стать вентиляционные установки, кондиционеры или периферийное оборудование для ЭВМ (плоттеры, принтеры и др). Длительное воздействие этих шумов отрицательно сказываются на эмоциональном состоянии персонала. Согласно ГОСТ 12.1.003-76 ССБТ эквивалентный уровень звука не должен превышать 50 дБА. Для того, чтобы добиться этого уровня шума рекомендуется применять звукопоглощающее покрытие стен. В качестве мер по снижению шума можно предложить следующее:
Поэтому я предлагаю для уменьшения шума в лаборатории использовать вместо матричного принтера, который производит много шума, более тихий – лазерный принтер. Защиту от шума следует выполнять в соответствии с ГОСТ 12.1.003-76, а звукоизоляция ограждающих конструкций должна отвечать требованиям главы СНиП 11-12-77 “Защита от шума. Нормы проектирования”. 1.4 Опасность повышенного уровня напряженности электромагнитного поля Электромагнитные поля характеризующиеся напряженностями электрических и магнитных полей, наиболее вредны для организма человек. Основным источником этих проблем, связанных с охраной здоровья людей, использующих в своей работе автоматизированные информационные системы на основе персональных компьютеров, являются дисплеи (мониторы), особенно дисплеи с электронно-лучевыми трубками. Они представляют собой источники наиболее вредных излучений, неблагоприятно влияющих на здоровье программиста. ПЭВМ являются источниками таких излучений как:
Ультрафиолетовое излучение полезно в небольших количествах, но в больших дозах приводит к дерматиту кожи, головной боли, рези в глазах. Инфракрасное излучение приводит к перегреву тканей человека (особенно хрусталика глаза), повышению температуры тела. Уровни напряженности электростатических полей должны составлять не более 20 кВ/м. Поверхностный электростатический потенциал не должен превышать 500В. При повышенном уровне напряженности полей следует сократить время работы за компьютером, делать пятнадцатиминутные перерывы в течении полутора часов работы и, конечно же, применять защитные экраны. Защитный экран, изготовляемый из мелкой сетки или стекла, собирает на себе электростатический заряд. Для снятия заряда экран монитора заземляют. Может возникнуть опасность по уровням напряженности электромагнитного поля. На расстоянии 5-10 см от экрана и корпуса монитора уровни напряженности могут достигать 140 В/м по электрической составляющей, что значительно превышает допустимые значения СанПиН 2.2.2. 542-96. Предельно допустимые значения характеристик ЭМП указана в таблице 1.1. Таблица 1.1 Предельно допустимые значения характеристик ЭМП
Для предупреждения внедрения опасной техники все дисплеи должны проходить испытания на соответствие требованиям безопасности (например международные стандарты MRP 2, TCO 99). Так как работа программиста по виду трудовой деятельности относится к группе В – творческая работа в режиме диалога с ЭВМ, а по напряженности работы ко II категории тяжести (СанПиН 2.2.2.542-96), я предлагаю сократить время работы за компьютером, делать перерывы суммарное время которых должно составлять 50 минут при 8-ми часовой смене и, конечно же, применять защитные экраны. Например, защитный экран “ERGON” способен защитить организм человека от электромагнитных полей, благодаря внедрению новых идей, связанных с поляризованными покрытиями. Для снятия заряда защитный экран, установленный на мониторе необходимо заземлить. 1.5 Электробезопасность. Статическое электричество. Помещение лаборатории по опасности поражения электрическим током можно отнести к 1 классу, т.е. это помещение без повышенной опасности (сухое, бес пыльное, с нормальной температурой воздуха, изолированными полами и малым числом заземленных приборов). На рабочем месте программиста из всего оборудования металлическим является лишь корпус системного блока компьютера, но здесь используются системные блоки, отвечающие стандарту фирмы IBM, в которых кроме рабочей изоляции предусмотрен элемент для заземления и провод с заземляющей жилой для присоединения к источнику питания. Таким образом, оборудование обменного пункта выполнено по классу 1 (ПУЭ). Электробезопасность помещения обеспечивается в соответствии с ПУЭ. Опасное и вредное воздействие на людей электрического тока, электрической дуги и электромагнитных полей проявляется в виде электротравм и профессиональных заболеваний. Степень опасного и вредного воздействия на человека электрического тока, электрической дуги и электромагнитных полей зависит от:
Электробезопасность в помещении лаборатории обеспечивается техническими способами и средствами защиты, а так же организационными и техническими мероприятиями. Рассмотрим основные причины поражения человека электрическим током на рабочем месте: Прикосновение к металлическим нетоковедущим частям (корпусу, периферии компьютера), которые могут оказаться под напряжением в результате повреждения изоляции. Нерегламентированное использование электрических приборов. Отсутствие инструктажа сотрудников по правилам электробезопасности. В течении работы на корпусе компьютера накапливается статическое электричество. На расстоянии 5-10 см от экрана напряженность электростатического поля составляет 60-280 кВ/м, то есть в 10 раз превышает норму 20 кВ/м. Для уменьшения напряжённости применять применение увлажнители и нейтрализаторы, антистатическое покрытия пола. Кроме того, при неисправности каких-либо блоков компьютера корпус может оказаться под током, что может привести к электрическим травмам или электрическим ударам. Для устранения этого я предлагаю обеспечить подсоединение металлических корпусов оборудования к заземляющей жиле. Электробезопасность обеспечивается в соответствии с ГОСТ 12.1. 030. - 81. Опасное и вредное воздействие на людей электрического тока проявляется в виде электротравм и профессиональных заболеваний. Электробезопасность в лаборатории обеспечивается техническими способами и средствами защиты, а так же организационными и техническими мероприятиями. Рассмотрим основные причины поражения программиста электрическим током на рабочем месте: Прикосновение к металлическим нетоковедущим частям системного блока ПЭВМ, которые могут оказаться под напряжением в результате повреждения изоляции. Запрещенное использование электрических приборов, таких как электрические плиты, чайники, обогреватели. 1.5.1Обеспечение электробезопасности техническими способами и средствами Так как все токоведущие части ЭВМ изолированы, то случайное прикосновение к токоведущим частям исключено. Для обеспечения защиты от поражения электрическим током при прикосновении к металлическим нетоковедущим частям, которые могут оказаться под напряжением в результате повреждения изоляции, я рекомендую применять защитное заземление. Заземление корпуса ЭВМ обеспечено подведением заземляющей жилы к питающим розеткам. Сопротивление заземления 4 Ом, согласно (ПУЭ) для электроустановок с напряжением до 1000 В. 1.5.2 Организационные и технические мероприятия по обеспечению электробезопасности Основным организационным мероприятием является инструктаж и обучение безопасным методам труда, а так же проверка знаний правил безопасности и инструкций в соответствии с занимаемой должностью применительно к выполняемой работе. При проведении незапланированного и планового ремонта вычислительной техники выполняются следующие действия: Отключение компьютера от сети Проверка отсутствия напряжения После выполнения этих действий проводится ремонт неисправного оборудования. Если ремонт проводится на токоведущих частях, находящихся под напряжением, то выполнение работы проводится не менее чем двумя лицами с применением электрозащитных средств. 2. Оценка условий труда. Гигиенические критерии оценки и классификаций условий труда основаны на принципе дифференциации условий труда по степени отклонения параметров производственной среды и трудового процесса от действующих гигиенических нормативов в соответствии с выявленным влиянием этих отклонений на функциональное состояние и здоровье работающих. Ниже приведены таблицы с оценкой классов условий труда программиста по факторам производственной среды. Фактическое состояние условий труда на рабочем месте (физические факторы) Таблица 2.1
Фактическое состояние условий труда на рабочем месте (психофизиологические факторы) Таблица 2.2
Общая оценка напряженности труда: 1. Число факторов класса 1 8 2. Число факторов класса 2 2 3. Число факторов класса 3.1 3 4. Число факторов класса 3.2 3 Общая оценка напряженности равна 3.1. Общая оценка условий труда Таблица 2.3
Таким образом, можно сказать, что общая оценка условий труда равна 3.2 – т.е. вредные условия труда второй степени. Это вредные условия труда, характеризующиеся наличием вредных производственных факторов, приводящих к в большинстве случаев к росту заболеваемости с временной утратой трудоспособности, повышением частоты заболеваемости, проявлением начальных признаков профессиональной патологии. 3 Организация рабочего места программиста Производственная деятельность программиста, заставляет его продолжительное время находиться в сидячем положении, которое является вынужденной позой, поэтому организм постоянно испытывает недостаток в подвижности и активной физической деятельности. При выполнении работы сидя большую роль играет плечевой пояс. Перемещение рук в пространстве влияет не только на работу мышц плечевого пояса и спины, но и на положение позвоночника, таза и даже ног. Чтобы исключить возникновение заболеваний необходимо иметь возможность свободной перемены поз. Необходимо соблюдать режим труда и отдыха с перерывами, заполняемыми “отвлекающими” мышечными нагрузками на те звенья опорно-двигательного аппарата, которые не включены в поддержание основной рабочей позы. Антропологические характеристики человека определяют габаритные и компоновочные параметры его рабочего места, а также свободные параметры отдельных его элементов. По условиям работы рабочее место программиста относится к индивидуальному рабочему месту для работы сидя. Рабочее место программиста должно занимать площадь не менее 6 мІ , высота помещения должна быть не менее 4 м, а объем - не менее 20 м 3 на одного человека. После проведения анализа рабочего места программиста в лаборатории было выяснено, что площадь данного рабочего места составляет 4 м 2 , а объем 12 м 3 , что не соответствует приведенным требованиям. Также в результате анализа были выявлены нарушения в организации непосредственно самого рабочего места программиста. В связи с этим я предлагаю организовать рабочее место программиста, следующим образом. Высота над уровнем пола рабочей поверхности, за которой работает оператор, должна составлять 720 мм. Желательно, чтобы рабочий стол оператора при необходимости можно было регулировать по высоте в пределах 680 - 780 мм. Оптимальные размеры поверхности стола 1600 х 1000 кв. мм. Под столом должно иметься пространство для ног с размерами по глубине 650 мм. Рабочий стол оператора должен также иметь подставку для ног, расположенную под углом 15° к поверхности стола. Длина подставки 400 мм, ширина - 350 мм. Удаленность клавиатуры от края стола должна быть не более 300 мм, что обеспечит оператору удобную опору для предплечий. Расстояние между глазами оператора и экраном видеодисплея должно составлять 40 - 80 см. Рабочий стул программиста должен быть снабжен подъемно-поворотным механизмом. Высота сиденья должна регулироваться в пределах 400 - 500 мм. Глубина сиденья должна составлять не менее 380 мм, а ширина - не менее 400 мм. Высота опорной поверхности спинки не менее 300 мм, ширина - не менее 380 мм. Угол наклона спинки стула к плоскости сиденья должен изменяться в пределах 90 - 110 ° . Схема рабочего места оператора приведена на рисунке 2. На рисунке цифрами обозначены: 1)стол; 2)стул; 3)подставка для ног; 4)системный блок; 5)монитор; 6)клавиатура; 7)принтер; 8)лоток для бумаги; 9)окно;
Рисунок 2.1 - Схема рабочего места программиста: а ) вид спереди ; б) вид с верху ; в) вид с боку. 4. Пожаробезопасность. Степень огнестойкости зданий принимается в зависимости от их назначения, категории по взрывопожарной и пожарной опасности, этажности, площади этажа в пределах пожарного отсека. Здание, в котором находится лаборатория по пожарной опасности строительных конструкций относится к категории K1 (малопожароопасное), поскольку здесь присутствуют горючие (книги, документы, мебель, оргтехника и т.д.) и трудносгораемые вещества (сейфы, различное оборудование и т.д.), которые при взаимодействии с огнем могут гореть без взрыва. По конструктивным характеристикам здание можно отнести к зданиям с несущими и ограждающими конструкциями из естественных или искусственных каменных материалов, бетона или железобетона, где для перекрытий допускается использование деревянных конструкций, защищенных штукатуркой или трудногорючими листовыми, а также плитными материалами. Следовательно, степень огнестойкости здания можно определить как третью (III). Помещение лаборатории по функциональной пожарной опасности относится к классу Ф 4.2 – высшие учебные заведения, учреждения повышения квалификации. 4.1 Причины возникновения пожара Пожар в лаборатории, может привести к очень неблагоприятным последствиям (потеря ценной информации, порча имущества, гибель людей и т.д.), поэтому необходимо: выявить и устранить все причины возникновения пожара; разработать план мер по ликвидации пожара в здании; план эвакуации людей из здания. Причинами возникновения пожара могут быть: неисправности электропроводки, розеток и выключателей которые могут привести к короткому замыканию или пробою изоляции; использование поврежденных (неисправных) электроприборов; использование в помещении электронагревательных приборов с открытыми нагревательными элементами; возникновение пожара вследствие попадания молнии в здание; возгорание здания вследствие внешних воздействий; неаккуратное обращение с огнем и несоблюдение мер пожарной безопасности. 4.2 Профилактика пожара Пожарная профилактика представляет собой комплекс организационных и технических мероприятий, направленных на обеспечение безопасности людей, на предотвращении пожара, ограничение его распространения, а также создание условий для успешного тушения пожара. Для профилактики пожара чрезвычайно важна правильная оценка пожароопасности здания, определение опасных факторов и обоснование способов и средств пожаропредупреждения и защиты. Одно из условий обеспечения пожаробезопасности - ликвидация возможных источников воспламенения. В лаборатории источниками воспламенения могут быть:
В целях предотвращения пожара предлагаю проводить с инженерами, работающими в лаборатории, противопожарный инструктаж, на котором ознакомить работников с правилами противопожарной безопасности, а также обучить использованию первичных средств пожаротушения. В случае возникновения пожара необходимо отключить электропитание, вызвать по телефону пожарную команду, эвакуировать людей из помещения согласно плану эвакуации, приведенному на рисунке _ 4.1 и приступить к ликвидации пожара огнетушителями. При наличии небольшого очага пламени можно воспользоваться подручными средствами с целью прекращения доступа воздуха к объекту возгорания.
Рис. 4.1 План эвакуации при пожаре. Поделитесь этой записью или добавьте в закладки |
Полезные публикации | ||||||||||||||||||||||||||||||||||||||||||||||||||||||||||||||||||||||||||||||||||||||||||||||||||||||||||||||||||||||||||||||||||||||||||||||||||||||||||||||||||||||||||||||||||||||||||||||||||||||||||||||||||||||||||||||||||||||||||||||||||||||||||||||||||||||||||||
Главная